Q347型蝸輪手動偏心半球閥PN16~PN25
Q347 型 蝸輪手動偏心半球閥 PN16~PN25利用偏心閥體,偏心球體和閥座,閥桿作旋轉運動時在共同軌跡自動定心,關閉過程中越關越緊,完全達到良好的密封性能。閥門的球體和閥座 完全脫離,消除了密封圈的磨損,克服了傳統球體閥座與球體密封面始終磨損的問題,非金屬彈性材料被嵌入金屬座中,閥座金屬面受到良好的保護。本產品特別適 用于鋼鐵業,鋁業,纖維,微小固體顆粒,紙漿,煤灰,石油氣等介質。
產品說明

Q347 型 蝸輪手動偏心半球閥 PN16~PN25利用偏心閥體,偏心球體和閥座,閥桿作旋轉運動時在共同軌跡自動定心,關閉過程中越關越緊,完全達到良好的密封性能。閥門的球體和閥座 完全脫離,消除了密封圈的磨損,克服了傳統球體閥座與球體密封面始終磨損的問題,非金屬彈性材料被嵌入金屬座中,閥座金屬面受到良好的保護。本產品特別適 用于鋼鐵業,鋁業,纖維,微小固體顆粒,紙漿,煤灰,石油氣等介質。
產品特點
1、其結構采用偏心契緊原理通過傳動機構達到閘緊、調節、關閉的目的,密封副是金屬面環帶硬面接觸密封,雙偏心結構在開啟時閥芯位于藏球室內,流通截面 大,且閥門不被沖刷,關閉時閥芯不被沖刷,開啟時閥芯球面沿閥座漸進,有效地切除結垢障礙,實現可靠密封。它對兩相混流易結垢固體析出的混流輸送特別有 效;
2、閥門的半球用雙金屬,母材上堆焊不同的合金,閥座也作相應堆焊經特殊的處理,密封面組合成防腐、耐磨、高強度等各種類型,滿足不同場合需求;
3、密封嚴密、輸送有害氣體可達零泄露;
4、密封副的閥芯留有補償量、當閥做磨損后,關閉時再轉動少許,任能可靠密封,延長了使用壽命。此外,用戶將壓緊螺母擰掉,調整或更換后閥座仍可用,避免 了閥門密封失效后,整臺報廢的弊端 因堆焊不同合金(或組合球)雙金屬密封副的選配可以用于耐磨、耐腐蝕、耐高溫且要求嚴格密封的工況;
執行標準
1.設計:GB12237-89;
2.法蘭連接:GB/T17241.6-1998、GB/T9115(鋼制);
3.結構長度:GB12221-89;
產品主要零件材料
Q347 型 蝸輪手動偏心半球閥 PN16~PN25零件材料 | |
名稱 | 材質 |
閥體 | QT450、WCB、ZG20CrMo、ZG1Cr18Ni9Ti |
閥軸 | 2Cr13、1Cr13 |
閥瓣 | 合金滲氮鋼、滲氮不銹鋼、耐磨鋼 |
閥座 | 合金滲氮鋼、滲氮不銹鋼、耐磨鋼 |
軸承 | 鋁青銅、FZ-1復合材料 |
填料 | 聚四氟乙烯、柔性石墨 |
產品性能參數
Q347 型 蝸輪手動偏心半球閥 PN16~PN25性能參數 | |||||
公稱壓力(Mpa) | 0.6 | 1.0 | 1.6 | 2.5 | 4.0 |
公稱通經(mm) | 40-1600 | 40-1600 | 40-1200 | 40-600 | 40-600 |
密封試驗壓力(Mpa) | 0.66 | 1.1 | 1.76 | 2.75 | 4.4 |
殼體試驗壓力(Mpa) | 0.9 | 1.5 | 2.4 | 3.75 | 6.0 |
適用溫度(℃) | -29~300、-29~425、-29~540 | ||||
適用介質 | 清水、海水、污水、酸堿等液體、料漿、蒸汽、燃氣、油類 | ||||
驅動方式 | 手動、電動、氣動 | ||||
連接形式 | 法蘭連接、對夾連接 | ||||
安裝方式 | 立式安裝、臥式安裝 | ||||
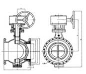
產品外形結構連接尺寸
Q347 型 蝸輪手動偏心半球閥 PN16~PN25外形結構連接尺寸 | |
公稱壓力 PN/Mpa | |
1.6 | |
產品結構尺寸圖

公稱通徑 | 尺寸 (mm) | |||||||
L | D | K | d | f | C | Z-¢d | H | |
40 | 165 | 150 | 110 | 85 | 3 | 16 | 4-¢18 | |
50 | 178 | 165 | 125 | 100 | ||||
65 | 190 | 185 | 145 | 120 | 18 | 280 | ||
80 | 203 | 200 | 160 | 135 | 20 | 8-¢18 | 320 | |
100 | 229 | 220 | 180 | 155 | 370 | |||
125 | 254 | 250 | 210 | 185 | 22 | 430 | ||
150 | 267 | 285 | 240 | 210 | 24 | 8-¢23 | 510 | |
200 | 292 | 340 | 295 | 265 | 26 | 12¢-23 | 600 | |
250 | 330 | 405 | 355 | 320 | 30 | 12-¢26 | 690 | |
300 | 502 | 460 | 410 | 375 | 4 | 760 | ||
350 | 572 | 520 | 470 | 435 | 34 | 16-¢26 | 830 | |
400 | 610 | 580 | 525 | 485 | 36 | 16-¢30 | 925 | |
450 | 660 | 640 | 585 | 545 | 40 | 20-¢30 | 1025 | |
500 | 700 | 715 | 650 | 608 | 44 | 20-¢34 | 1120 | |
600 | 813 | 840 | 770 | 718 | 5 | 48 | 20-¢36 | 1210 |
球閥安裝注意事項
安裝施工必須小心,切忌撞擊閥門。
2.安裝前,應將球閥作一檢查,核對規格型號,鑒定有無損壞,尤其對于閥桿。還要轉動幾下,看是否歪斜,因為運輸過程中,最易撞歪閥桿。還要清除閥內的雜物。
3.球閥起吊時,繩子不要系在手輪或閥桿上,以免損壞這些部件,應該系在閥體上。
4.對于球閥所連接的管路,一定要清掃干凈。可用壓縮空氣吹去氧化鐵屑、泥砂、焊渣和其他雜物。這些雜物,不但容易擦傷球閥的密封面,其中大顆粒雜物(如焊渣),還能堵死小閥門,使其失效。
5.安裝時要留有閥柄旋轉的位置。6.球閥不能用作節流。 7.帶傳動機構的球閥應直立安裝。
聲明
本文中所有文字、數據、圖片均只適用于參考,Q347型蝸輪手動偏心半球閥PN16~PN25性能參數、結構尺寸參數、價格等詳情,請聯系我們
|
||||||||||||||||||||||||
![]() |
||||||||||||||||||||||||
| ||||||||||||||||||||||||










